Posuvné dvere sa čoraz viac stávajú obľúbeným riešením v interiéri. Šetria priestor, pôsobia elegantne a umožňujú kreatívne usporiadanie miestnosti. Aby však fungovali spoľahlivo, je nevyhnutné kvalitné kovanie. Kovania na posuvné dvere sú dôležitou súčasťou interiérového vybavenia, ktorá umožňuje efektívne a hladké otváranie a zatváranie posuvných dverí. Pod pojmom kovanie pre posuvné dvere myslíme celý interiérový posuvný systém, ktorý zabezpečuje bezpečný a presný posuv krídla popri stene. V praxi rieši tento mechanizmus najmä úsporu miesta (dvere sa neotvárajú do priestoru), čistý dizajn a pohodlné delenie zón.
Tieto kovania sa používa hlavne ako interiérové dvere a priestorové deliace priečky. Hodí sa do menších miestností aj do otvorených dispozícií, kde chcete oddeliť napríklad šatník, špajzu, pracovňu alebo priechod medzi miestnosťami.

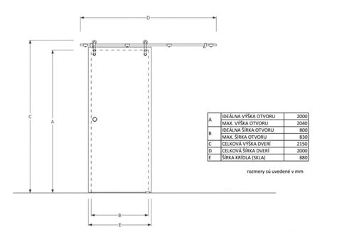
Čo tvorí kovanie na posuvné dvere?
Typicky ide o koľajnicu, vozíky s kolieskami, zarážky (dorazy), spodné vedenie a úchyty (madlo alebo mušľa). Vozíky (pojazdy) - zabezpečujú samotný pohyb dverí. Horná koľajnica: Tieto hliníkové koľajnice sú namontované buď na vrch dverného otvoru, alebo na strop. Nosné kolieska: Sú umiestnené na hornej strane dverí a umožňujú ich hladký pohyb po koľajniciach. Úchytky: Umožňujú jednoduché otváranie a zatváranie dverí. Zámky: Umožňujú zabezpečenie dverí a ochranu obsahu za dverami.
Typy kovaní a ich využitie
Moderné systémy dokážu nenápadne zapadnúť do interiéru alebo sa naopak stať výrazným dizajnovým prvkom. V ponuke najčastejšie rozlišujeme dva smery: kovanie pre posuvné dvere Basic (čistá línia) a kovanie pre posuvné dvere Barn (výrazný dizajn). Basic sa hodí do moderných interiérov, kde chcete jednoduchý, univerzálny vzhľad. Pri oboch typoch sa stretnete aj s riešeniami pre širšie priechody, vrátane možností na dve krídla.
Industriálny a loftový štýl stojí na priznaných materiáloch a technických detailoch. Preto v ňom vynikne priznaná koľajnica, oceľový vzhľad a najmä čierna matná povrchová úprava, ktorá pôsobí moderne a zároveň „remeselne“. Kovanie pre posuvné dvere ponúka skvelú voľbu ako zo svojich dverí urobiť krásny doplnok interiéru v industriálnom alebo loftovom štýle.

Kovanie KANON a HERKULES
Ak chcete priniesť do svojho interiéru eleganciu, praktickosť a špičkový komfort, siahnite po kvalitnom kovaní na posuvné dvere. Hľadáte kovanie na posuvné dvere do interiéru? Vyberte si najlepšie kovanie na posuvné dvere KANON. V ponuke nájdete závesné kovanie na posuvné dvere, kovanie na posuvné dvere s tlmením, kovania so synchronizovaným zatváraním alebo kovania na posuvné dvere s neviditeľnou koľajnicou. V prípade ak hľadáte závesný systém na posuvné dvere do interiéru pripravili sme pre vás širokú ponuku. Pre jednoduché závesné dvere zvoľte kovanie KANON s nosnosťou až 100 kg s koľajnicou na posuvné dvere v rozsahu 2 - 4 m. Ak hľadáte kvalitné riešenie s tlmením alebo synchronizáciou či už pre drevené alebo sklenené dvere zvoľte kovanie HERKULES.
Kovanie BARN DOOR
Ak ste zástancom vintage a retro štýlu, zvoľte vidiecke kovanie BARN DOOR (ide o čierne kovanie na dvere). Barn systémy sú o dizajne. V ponuke sa stretnete s rôznymi vzormi (napríklad romb, podkova, T, smart), ktoré menia vizuál vozíkov a detailov.
Výber správneho kovania: Na čo si dať pozor?
Pri výbere odporúčame sledovať parametre, ktoré ľudia riešia najčastejšie: maximálnu nosnosť, odporúčanú hrúbku dverí a počet zarážok. Dĺžka koľajnice je kľúčová, pretože dvere musia mať kam „odísť“. Ak je koľajnica krátka, posuv síce funguje, ale otvor nevyužijete naplno. Pri plánovaní nezabudnite na priestorové prekážky: zásuvky, vypínače, radiátor, lišty, obrazy alebo nábytok pri stene. Odporúčame zmerať šírku a výšku otvoru, hrúbku dverí a najmä voľný priestor na stene v smere posuvu.
Častá chyba je zabudnutý presah - dvere sa síce posunú, ale madlo narazí do steny alebo dôjde ku kontaktu s obložkou. Nosnosť rozhoduje najmä pri masívnom dreve, kovových dverách alebo atypických krídlach. Pri robustných loft systémoch sa bežne uvádza maximálna nosnosť okolo 150 kg, čo je typická hodnota pri pevnejších setoch. Rovnako dôležitá je hrúbka dverí. Niektoré riešenia sú optimalizované napríklad pre 45 - 50 mm, iné pokryjú širší rozsah (napríklad 25 - 45 mm podľa typu). Najlepšie výsledky dosiahnete, keď majú dvere rovný povrch a presnú hranu pre spodné vedenie.

Dvojkrídlové riešenia a priestorové aspekty
Dvojkrídlové riešenie sa oplatí tam, kde je široký priechod a chcete symetriu - napríklad obývačka s kuchyňou, veľká chodba alebo kancelárske zóny. Pri plánovaní si overte, či máte na stene dostatok miesta pre „odchod“ oboch krídel. Áno, existujú riešenia pre dvojkrídlové posuvné dvere, ktoré sú určené pre širšie priechody a symetrický vzhľad. Dôležité je mať dostatok priestoru na stene na obe strany, aby sa krídla mali kam odsúvať.
Úchyty: Madlo alebo mušľa?
Úchyty (madlo či mušľa) musia byť uchytené pevne, aby sa pri používaní neuvoľňovali. Pri posuvných dverách riešime nielen chod, ale aj komfort. Madlo je vystúpené a dobre sa uchopí, mušľa je zapustená a minimalizuje prekážky. Dôležitá je aj výška montáže a ergonómia úchopu. Farbu a povrch zladíte podľa štýlu - čierna pre loft, bronz pre teplejší industriál, nikel pre neutrálnejší moderný dojem. Často sa kombinuje madlo z jednej strany a mušľa z druhej - podľa toho, z ktorej strany dvere najčastejšie zatvárate a kde potrebujete minimalizovať presah.

Spodné vedenie a jeho význam
Kompletný set zvyčajne obsahuje koľajnicu, vozíky s kolieskami, zarážky (dorazy), spojovací materiál a riešenie spodného vedenia. Spodné vedenie odporúčame najmä pri vyšších a ťažších dverách alebo tam, kde sa dvere používajú často. Pomáha stabilizovať krídlo, znižuje vychyľovanie a podporuje rovný chod. Pri montáži je dôležité správne umiestnenie, aby dvere neťahalo do strany.
Montáž a časté problémy
Pred vŕtaním si overte nosnosť steny, rovinu a umiestnenie otvoru. Rozhoduje aj výška dverí a obložky - koľajnica musí byť v správnej osi, aby dvere pri posuve neťahalo do strán. Presnosť je pri posuvnom systéme kľúčová: rozostup kotiev, výška spodného vedenia a nastavenie koncových polôh ovplyvňujú plynulosť chodu aj hlučnosť. V byte bývajú tenšie priečky a obmedzený priestor na stene, preto často odporúčame mušľu a presné plánovanie „odchodu“ krídla. V dome sa častejšie montujú väčšie krídla, preto sa rieši vyššia záťaž a podklad.
Najčastejšie problémy vznikajú z nesprávnej dĺžky koľajnice, zlého merania alebo krivej montáže. Častá je aj nevhodná hrúbka dverí k vybranému setu a chýbajúce spodné vedenie, ktoré potom spôsobuje vychyľovanie krídla. Ak sa objaví vŕzganie, drhnutie alebo ťažký chod, často pomôže jednoduchá diagnostika: skontrolovať koľajnicu, vozíky, nečistoty a dorazy. Najčastejšie ide o nečistoty v koľajnici, uvoľnené skrutky alebo nesprávne nastavené dorazy a spodné vedenie. Pomôže vyčistiť koľajnicu, skontrolovať dotiahnutie spojov a overiť polohu spodnej vodiacej lišty, aby dvere neťahalo do strany.
Montáž posuvných dverí svojpomocne
Údržba a starostlivosť
Základom je pravidelné odstránenie prachu z koľajnice, kontrola dorazov a spojov. Občas sa odporúča dotiahnuť skrutky, najmä ak sa dvere používajú intenzívne. Mazanie sa robí iba vtedy, ak to odporúča výrobca, pretože nevhodné prípravky môžu viazať prach a zhoršiť chod. V dielni alebo pri zvieratách sa čistí častejšie, aby sa nečistoty neusádzali v kolieskach. Začnite čistením koľajnice a kontrolou dotiahnutia skrutiek. Skontrolujte polohu spodnej vodiacej lišty, aby dvere neťahalo do strany. Skontrolujte dorazy a koncové polohy, aby dvere nárazmi netrpeli.